Construction example
施工事例
東京都 足立区
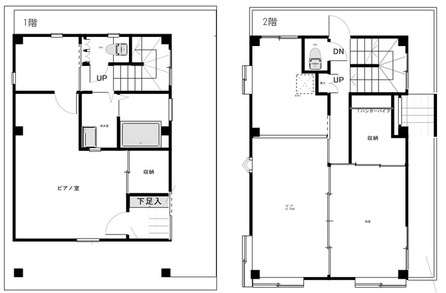
駐車場をピアノ室にリフォーム!
施工後
- お客様のご要望
- 1階駐車スペース、水回り等を改築して、防音設備のピアノ練習室に変更したい。 それとともに、2階の玄関、テラス部分も改修したい。
- 施工のポイント
- 駐車場スペースをピアノ室に間取りを変更しました。1階に玄関を新設し、外階段と2階の玄関を撤去しベランダを延長しました。2階の玄関部分は和室の押入と繋げて広い収納スペースに改装しました。
基本情報
- 建物のタイプ
- 戸建
- 工事期間
- 1ヶ月
- 築年数
- 26〜30年
- 価格
- 489万円
- 備考
- ベランダ床タイル LIXIL ビューステージH 縦太格子
施工前写真







