Construction example
施工事例
東京都 足立区
段差解消で安全な暮らし
施工後
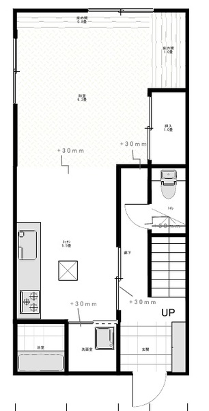
- お客様のご要望
- 収納量の多いキッチンと洗面台に交換と洗面所・廊下・キッチン・和室の段差を解消したい。
- 施工のポイント
- 介護保険を適用し段差解消工事をいたしました。歩行の際、足が上がらず、すり足の場合は少しの段差でも躓いてしまい危険です。廊下に接する部屋の出入り口は20mm〜30mmの段差がありました。和室はクッションフロアに張替えお部屋全体が明るくなりました。
基本情報
- 建物のタイプ
- 戸建
- 工事期間
- 5日間
- 築年数
- 30年以上
- 価格
- 115万円
- 備考
- キッチン TOTOシステムキッチン ミッテI型間口2400サイズ
洗面台 TOTO Vシリーズ
クッションフロアHW−4173 サンゲツ
施工前写真






