Construction example
施工事例
東京都 足立区
コンパクトな0816サイズのユニットバス
施工後
- お客様のご要望
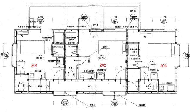
- 2階の3部屋を賃貸用に間取りを変更したい。
- 施工のポイント
- ユニットバスを新設しました。
狭い場所におすすめのTOTOユニットバスルームの和風ユニットJHシリーズを採用しました。コンパクトな0816サイズ。
壁材のHQパネルは表面に汚れが付きにくく落ちやすいのでお手入れがラクラク。洗面器の取り付けも可能です。
基本情報
- 建物のタイプ
- 戸建
- 工事期間
- 2ヶ月
- 築年数
- 30年以上
- 価格
- 45万円(単独工事をする場合の概算です)
- その他採用機器・設備
- 201号室 TOTO ユニットバス システムバス 0816 マンション用 和風ユニット JHシリーズ Sタイプ
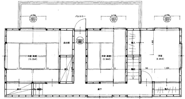
施工前写真


